
旋转式滗水器是在消化吸收国外优良技术而生产的,专门为大型序批式生物处理系统而设计,具有良好的水力机械性能,能实现滗水过程中进入出水堰的水流呈层流状态,下降速度平衡,使出水量保持不变,是循环式活性污泥法工艺的关键设备。
工作过程:
在曝气和沉淀阶段,滗水器位于主曝气区的高液位之上。滗水时,下降到水面以下进行排水,当水位下降到低水位,滗水器返回到初始位置。

滗水器在运行过程中实现自动变速,并且调整范围大。设备运行与水位下降保持同步,下降速度为均速。滗水时的运行速度可以根据不同的水质可选择相应的下降速度。不同于滑块升降装置,更不同于气动或液压的升降装置。
电控系统采用的变频器安装于就地控制箱,既能现场手动控制又能接受中央控制室PLC发出的控制信号以实现自动控制。
出水的全过程都能阻挡水面的浮渣不进入出水堰。
水下转动部件密封性能良好,密封圈使用寿命长,更换容易,确保出水水质。
滗水器运行过程实行限位控制。以保护机构不受损害。
驱动机构稳定可靠,耗电量小,运行费用低。
整机机构紧凑,操作简便,维修方便。



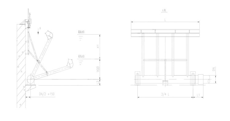
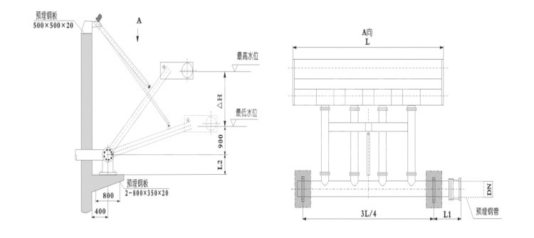
XB滗水器由滗水装置、传动装置、撇渣浮筒装置及回转支承等组成。驱动机构通过可伸缩推杆带动滗水装置及撇渣浮筒装置绕回转支承旋转,从而使滗水堰口上下移动,达到滗出上清液的目的XB-L型旋转式滗水器由集水槽、浮筒、排水管组、回转支座、螺杆、连杆装置、导轨及传动装置组成。XB-D 型旋转式滗水器主要由集水槽、浮筒、排水管组、回转支座、电动推杆及电控箱等组成。XB-F型旋转式滗水器主要由集水槽、浮筒、排水管组、电磁阀、液位计及电控箱等组成。
滗水器电控部分可采用变频器、PCL 控制,能实现手动和自动控制。
排水时,控制元件给出信号,指令传动装置工作,螺母旋转,螺杆匀速下降,使撑杆按一定轨迹运动或由电动推杆推动,集水偃槽按设定速度下移,完成均量滗水。滗水结束后,液位控制仪给出信号,电机反转,牵引集水偃槽上移,回到预置位置。
XB 型滗水器可追随水位连续、定量排水,滗水深度大,动作平稳可靠,液面无搅动。整机耗能少,使用寿命长。












