
产品简介:
潜水搅拌机是通过德国潜水电机密封技术研制成功的。经过多年的实践摸索,因其在形式、结构和试验方法上的创新,使得潜水搅拌机总体性能达到了国外同类产品的水平。
QJB型潜水搅拌机可分为混合搅拌和低速推流两大系列。
混合系列搅拌机适用于污水处理厂和工业流程中搅拌含有悬浮物的液体;
低速推流系列搅拌机适用于工业和城市污水处理厂曝气池,其产生低切向流的强力水流,可用于循环及硝化、脱氮和除磷阶段创建水流等。
适用范围:
搅拌机在下列条件下应能正常连续运行:
1介质温度不超过40°C;
2介质的PH值在5~9间;
3液体密度不超过1150kg/m3;
4长期潜水运行,潜水深度一般不超过20m。
重点注意事项:
潜水搅拌机必需完全潜入水中工作;不能在易燃易爆或有强腐蚀性液体的环境中工作;钢膨胀螺栓须按要求固定,安装完毕后,必须将电缆拉紧固定好.
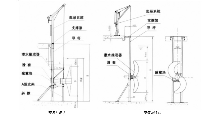
潜水推流器选型时,浆叶直径超过2M,建议使用齿轮箱减速机.


1 结构紧凑、操作维修简单、安装检修方便、使用寿命长;
2 叶轮符合水力设计结构,工作效率高,后掠式叶片具有自洁功能,可防杂物缠绕、堵塞;
3 与曝气系统混合使用可使能耗大幅度降低,充氧量明显提高,有效防止沉淀;
4 电机绕组绝缘等级F级,防护等级为IP68,选用优质轴承和电机防凝露装置,使电机的工作更安全;
5 两道机械密封;

















